IHRE WÜNSCHE

Elementa Systemat AV 6000-GL weiß Mattlack Umplanbare geradlinige, grifflose Mattlackküche

Preis:
5.100 € inkl. MwSt.
Preis ohne Geräte
Angebot beanstanden

Anzahl Laufmeter: 4

Artikelbeschreibung

Elementa Systemat AV 6000-GL weiß Mattlack Umplanbare geradlinige, grifflose Mattlackküche

Angebotstyp: Musterküche

Umplanbare geradlinige, grifflose Mattlackküche mit Schichtstoffarbeitsplatte, 4 cm dick, Ihrer Wahl aus unserem Sortiment

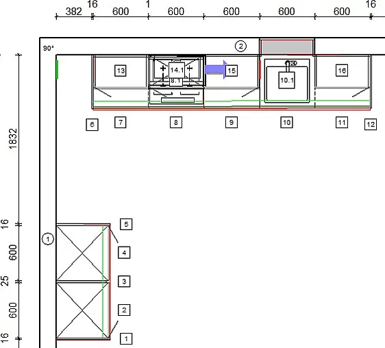
Die Küchenzeilen sind jeweils eingerahmt mit Mattlackwangen und einem Abdeckboden. Auch über der langen Küchenzeile befindet sich ein Abdeckboden, der die Zeile eingerahmt und geradlinig wirken lässt.

Diese geradlinige, filigrane Ausführung findet man in den Unterschränken mit nur einer Kehlleiste wieder. Diese sind deshalb alle mit innenliegenden Auszügen „METRO Line R, lavagrau“ ausgestattet.

Gerne planen wir die Küche mit den im Angebot enthaltenen Schränken um. Auf die hohen Wangen und den Abdeckboden in der Arbeitszeile kann auch verzichtet werden.

Das Mülltrennsystem kann wahlweise 2 oder 3 Eimer beinhalten.

Alle Hängeschränke besitzen einen LED-Boden in der Griffleiste für eine optimale Beleuchtung.

Die Arbeitszeile ist 3032 mm lang und die beiden Hochschränke haben zusammen eine Breite von 1232 mm.

Im Schrank über dem Kochfeld kann eine Schrankhaube eingebaut werden.

In der Hochschrankzeile findet ein Kühlschrank mit einer Nischenhöhe von 1780 mm und ein Backofen mit einer Nischenhöhe von 590 mm Platz. Die Kühlschranktür ist gestiftet und der Gerätehochschrank für den Backofen hat oberhalb und unterhalb des Backofens eine Tür mit Einlegeböden.

Lieferung und Montage gegen Berechnung, bitte vor Ort besprechen


Onlinenachricht an Küchen- und Einrichtungsstudio Blickle GmbH

Mit * gekennzeichnete Felder sind Pflichtfelder.

Jetzt Alle Angebote des Händlers anzeigen...